托盤
3842545084 力士樂WT5工裝板
品牌:博世力士樂
名稱:工裝板WT5
部件號:3842545084
產品系列:輸送系統TS5
021-57893800工作時間:周一至周五 9:00-18:00
- 產品介紹
- 技術參數
- 產品圖片
3842545084 力士樂工裝板WT5的作用是在輸送系統中作為輸送工件的工具輸送工件通過各加工工位。
應用:
——用于與基板組合成工件托盤 WT 5
——用于客戶工裝夾具的安裝
款式:
—— 6 種規格,2 種厚度
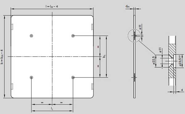
——承載板,安裝完畢,帶固定用孔
說明:
用于將承載板安裝在基板上:
——定位導套組件 3842545075
——緩沖元件 3842530531

| bWT [mm] | 455 |
| lWT[mm] | 650 |
| dPL[mm] | 12.7 |
| □[mm] | 0.8 |
| mPL[kg] | 9.9 |
dPL = 板厚度
□ = 平面度
mPL = 板重量








